Стройся!!! Строительство, проекты домов Гидроизоляция подземных сооружений   
Поиск Проекты домов Дом, участок, сад Стройка, отделка, ремонт Инж. системы Интерьер, дизайн Статьи Форум, блоги Объявления



Гидроизоляция строительных конструкций

Сокова С.Д., профессор МГСУ, чл.-корр. АКХ

Одной из актуальных проблем нового строительства и эксплуатации существующих зданий и сооружений является гидрозащита и восстановление несущей способности строительных конструкций. Вид и механизм увлажнения различные не только для одного объекта в целом, но и для отдельно взятой конструкции. Эффективная система защиты от увлажнения определяется только после выявления источника увлажнения, установления характера взаимодействия конструкции с окружающей средой и степени сохранности конструкционного и отделочного материалов. Вода действует на строительные конструкции с наружной или внутренней стороны (атмосферная и грунтовая).

Вода, действующая на конструкцию, может быть трех видов: фильтрационная, или просачивающаяся, вода возникает от дождевых, талых и случайных стоков и не оказывает на конструкцию гидростатического давления, если конструктивное решение обеспечивает беспрепятственное отекание воды без образования застойных зон; почвенная, или грунтовая, вода удерживается в грунте адгезионными и капиллярными силами и не оказывает на конструкцию гидростатического давления, если конструктивное решение обеспечивает беспрепятственное стекание воды без образования застойных зон; подземная вода обусловливается уровнем грунтовых вод в зависимости от рельефа местности и положением водоупорного слоя.

Три категории гидрофизической нагрузки подземных вод:

  • нагрузка влажностью материала строительной конструкции. Вода связана или двигается в порах и капиллярах строительных конструкций. Интенсивность нагрузки зависит от места нахождения, от источника влаги, пористости материала конструкции и температуры;
  • нагрузка свободно стекающей (гравитационной) водой (дождем) возникает под влиянием воды в жидком состоянии, которая не образует давления или образует очень низкое давление. Вода стекает вдоль вертикальных или наклонных поверхностей строительных конструкций, нигде не задерживается и не образует связную поверхность. Интенсивность нагрузки зависит от количества стекающей воды и уклона гидроизоляции;
  • нагрузка напорной водой (самая опасная) возникает под действием воды в жидком виде, измеряется гидростатическим давлением. В водопроницаемых материалах образуется связный уровень, под которым вода может распространяться во всех направлениях. Интенсивность нагрузки зависит от гидростатического давления воды.

От напорных грунтовых вод проводят следующие мероприятия:

  • дренирование;
  • формирование местности и объекта;
  • образование гидроизоляционной системы.

Эти мероприятия, прежде всего, влияют на изменение уровня подземной воды. Они не устраняют необходимость проведения самой гидроизоляции, но могут существенно снизить финансовые расходы на ее проведение.

От напорных вод можно применять:

  • конструктивные материалы (например, водоплотные бетоны);
  • особые гидроизоляционные слои;
  • инъецирование;
  • электроосмос;
  • «воздушное дупло».

Прежде, чем приступать к гидроизоляции подземных сооружений, необходимо выполнить следующие этапы:

  • получить техническое задание от заказчика;
  • провести обследование объекта с выбуриванием керна;
  • провести проходку шурфов;
  • установить наблюдение за гидрогеологической обстановкой: фиксируется максимальный уровень и химический состав воды, а также коэффициент фильтрации и кривая зернистости, состав земляного профиля, механическая стабильность почвы; химические температуры, биологические и электромагнитные влияния (т.е. коррозионная стойкость);
  • выдать техническое заключение по ремонту объекта, в котором учесть совместимость гидроизоляции с материалом конструкции;
  • провести работы в соответствии с выданным заключением.

В весенний период оттаивания повышается уровень грунтовых вод (УГВ), которые, взаимодействуя с минеральными и органическими частицами, изменяют свой химический состав и концентрацию. В зависимости от этого агрессивные грунтовые воды подразделяют на: общекислотные, выщелачивающие, сульфатные, углекислотные и др. Колебания УГВ активизируют выщелачивание извести в бетонных конструкциях. Дождевая вода захватывает из атмосферы большое количество газообразных производственных выбросов (оксиды углерода, серы, азота, фосфора, аммиак, хлор, хлористый водород). Дождь превращается в кислотный раствор, разрушающий бетон, мрамор, силикатный кирпич, при этом увеличивается количество пор, капилляров, трещин. Содержание оксидов серы и азота не вызывает смещение углекислотного равновесия. Углекислый газ превращает нерастворимый кальций в водорастворимый гидрокарбонат кальция.

СаС03 + С02 + Н20 = Са(НС03)2

Выбор типа гидроизоляции зависит от химического состава и уровня грунтовых вод.

Гидроизоляционные материалы предназначены для защиты различных строительных конструкций от поверхностного износа и трещин, т.е. от вредного воздействия воды (антифильтрационная гидроизоляция) и агрессивной внешней среды (антикоррозионная гидроизоляция). Технические решения по защите строительных конструкций должны быть самостоятельной частью проектов зданий и сооружений. При проектировании защиты строительных конструкций и материалов следует учитывать характеристики агрессивной среды, в условиях которой происходят те или иные коррозионные разрушения. В зависимости от физического состояния агрессивные среды подразделяют на газообразные, жидкие и твердые.
 

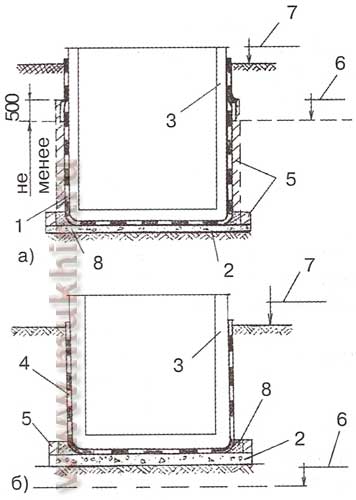
Гидроизоляция подземных сооружений
Рис. 63. Гидроизоляция подземных сооружений:
а - от напора грунтовых вод; б - от грунтовой капиллярной влаги;
1 - гидроизоляция; 2 - подстилающий слой (подготовка); 3 - несущая конструкция; 4 - защитная стяжка; 5 - защитное ограждение гидроизоляции (устраивается при необходимости); 6 - максимальный уровень грунтовых вод; 7 - планировочная отметка земли; 8 - шпонка 100*150 мм из горячих асфальтовых материалов;

Гидроизоляция заглубленных сооружений
Рис. 64. Гидроизоляция заглубленных сооружений:
а - от напора грунтовых вод; б - от грунтовой капиллярной влаги;
1 - гидроизоляция от напора грунтовых вод; 2 - подстилающий слой (подготовка); 3 - несущая конструкция; 4 - гидроизоляция от капиллярной влаги; 5 - защитное ограждение гидроизоляции (устраивается при необходимости); 6 - максимальный уровень грунтовых вод; 7 - планировочная отметка земли; 8 - шпонка 100*150 мм из горячих асфальтовых материалов

Гидроизоляция подвальных помещений
Рис. 65. Гидроизоляция подвальных помещений:
а - от грунтовой капиллярной влаги; б - от напора грунтовых вод (железобетонное днище заанкерено в стене); в - от напора грунтовых вод (сплошной фундамент в виде монолитной железобетонной плиты); г - от напора грунтовых вод (с пригрузочным слоем на днище);
1 - гидроизоляция; 2 - подстилающий слой (подготовка); 3 - противокапиллярная прокладка; 4 - цементная штукатурка; 5 - защитное ограждение гидроизоляции (устраивается при необходимости); 6 - максимальный уровень грунтовых вод; 7 - пригрузочная конструкция; 8 - отмостка; 9 - заанкеренная железобетонная плита; 10 - битумная мастика; 11 - фундаментная плита; 12 - шпонка 100*150 мм из горячих асфальтовых мастик

В зависимости от интенсивности агрессивного воздействия на строительные конструкции среды подразделяют на классы, которые определяют по отношению к конкретному не защищенному от коррозии материалу. Среды, воздействующие на бетонные и железобетонные конструкции, подразделяют на слабо-, средне- и сильноагрессивные. В зависимости от характера воздействия агрессивных сред на строительный материал их подразделяют на химические (например, сульфатная, магнезиальная, кислотная, щелочная и т.п.) и биологические.

Вид и степень ответственности подземных конструкций также влияет на выбор защиты (рис. 63-65). По этим признакам следует различать строительные конструкции, которые рассчитывают на прочность, устойчивость, деформацию (основные фундаменты под здания) и многочисленные фундаменты мелкого заложения (выполняемые без расчетов) из бетона или железобетона с конструктивным армированием. Как правило, они имеют большие запасы прочности. Для конструкции этого типа нормы агрессивности подземных вод допустимо принимать со значительно более высокими показателями ввиду меньшей степени ответственности самой конструкции. Нормы могут быть увеличены по предельным значениям водородного показателя рН, ионам окислов S04-, Cl на 25-30%. По отдельным параметрам, например бикарбонатной щелочности и углекислоте, защита вообще не требуется. В старых постройках во влажных местах выступают соляные пятна. Речь идет о вредных солях группы хлоридов, сульфатов и нитратов. Соли обладают свойством даже из воздуха впитывать влагу, накапливать и вновь выделять. При этом повторяющемся процессе образуются кристаллы соли. Они усиливаются путем соединения новой кристаллизирующейся соли со старыми кристаллами. Кристаллизация приводит к разрушению материалов. Поднимающаяся капиллярная влага устраняется бурением горизонтальных отверстий и заполнением их «Аквафин-Ф». Повреждения от ржавчины, которые можно наблюдать на сооружениях, являются проявлением сложного процесса ухудшения состояния бетона. Обычно арматурная сталь надежно защищена растворной частью бетона, поскольку высокий водородный показатель (примерно =13) бетона укрепляет тонкую защитную пленку металла, покрывающую арматуру. Если величина рН уменьшается, то пленка перестает защищать арматуру, и арматура подвергается электрохимической реакции (ржавлению). В зависимости от гидростатического напора применяются различные типы гидроизоляции (табл. 25).

Таблица 25

Давление воды Тип гидроизоляции
окрасочная штукатурная оклеечная облицовочная
битумная полимерная асфальтовая цементная полимерная металлическая
Гидростатический напор, м 2 5 20 30 30 30 Неограничен

Выше максимального уровня грунтовых вод конструкции должны быть изолированы от капиллярной влаги. Значения максимального поднятия капиллярной влаги в зависимости от вида грунта приведены в табл. 26.

Таблица 26

Вид грунта Капиллярный подъем влаги, м

Пески:

крупнозернистые 0,03-0,15
среднезернистые 0,15-0,35
мелкозернистые 0,35-1,1

Супеси

1,1-2

Суглинки:

легкие 2-2,5
средние 3,5-6,5
Лессовидные и глинистые грунты 4 и более
Глины до 12
Илы до 25

Тип гидроизоляции выбирается в зависимости от допустимой влажности воздуха в подвальных помещениях (табл. 27).

Таблица 27

Тип гидроизоляции Воздействие воды Относительная влажность помещений, %
менее 60 60-74 свыше 75
Окрасочная* Капиллярный подсос + + +
Гидростатический напор - +1) +1)
Окрасочная полимерная Капиллярный подсос + + +
Гидростатический напор - - +
Штукатурная Капиллярный подсос - - -
Штукатурная цементная* Гидростатический напор - +2) +3)
Асфальтовая Капиллярный подсос - - -
Гидростатический напор - + +
Оклеечная Капиллярный подсос - - -
Оклеечная битумная Гидростатический напор + + +
Полимерная (рулонная, листовая) Капиллярный подсос - - -
Гидростатический напор + + +
Металлическая Капиллярный подсос - - -
Гидростатический напор + - -

Примечания. "+" - допускается к применению; "-" - не допускается или не рекомендуется к применению; * - Не применяется при допустимом раскрытии трещин 0,2 мм и более. 1) окрасочная гидроизоляция на полимерной основе; 2) торкретирование следует предусматривать с наружной и внутренней сторон изолируемой конструкции, с устройством со стороны напора поверх торкретного слоя окрасочной гидроизоляции; 3) торкретирование следует предусматривать только со стороны напора с устройством поверх торкретного слоя окрасочной гидроизоляции.

Тип покрытия в зависимости от степени воздействия агрессивных подземных вод приведен в табл. 28.

Таблица 28

Тип защитного покрытия Степень воздействия агрессивных подземных вод
слабая средняя сильная
Окрасочные покрытия
1. Битумные покрытия холодные и горячие + - -
2. Битумные полимерные покрытия + + -
3. Полимерные лакокрасочные покрытия +* + +
4. Полимерные покрытия эпоксидные +* +* +
Штукатурные асфальтовые и литые покрытия
5. Штукатурные асфальтовые покрытия + + -
6. Литые асфальтовые покрытия +* + -
Оклеечные покрытия
7. Оклеечные битумные рулонные покрытия +* +* +
8. Оклеечные полимерные рулонные покрытия +* +* +
* Допускается при соответствующем обосновании, "+" - рекомендуется; "-" - не допускается.

Выбор типа гидроизоляции для защиты подземных конструкций от воздействия агрессивных подземных вод к определенному виду железобетонных конструкций приведен в табл. 29

Таблица 29

Наименование подземных конструкций Степень воздействия агрессивных подземных вод
слабая средняя сильная
Сборные монолитные конструкции: толщиной более 0,5 м (массивные фундаменты оборудования и колонн зданий; фундаментные плиты) I II, V III, VII
толщиной менее 0,5 м (подпорные стенки, фундаментные плиты, свайные ростверки и др.) II III, VI IV, VIII
Сваи, фундаменты, цокольные балки и др. I III IV

© ООО "СтройИнформ"

Общие сведенияТехнология производства работ подготовительного периодаОснования фундаментовЗемляные работыВиды фундаментовТеплоизоляция фундаментов и подваловГидроизоляция строительных конструкцийМатериалы для гидроизоляции подземных сооруженийТехнология работ по устройству гидроизоляцииКомплексные системы защиты здания от увлажненияСоставы для гидроизоляции подземных конструкций

Гидроизоляция строительных конструкций || Требования, предъявляемые к гидроизоляции строительных конструкций различных сооружений || Подготовка оснований под гидроизоляцию


---

Ссылки на другие страницы сайта по теме «строительство, обустройство дома»:




© 2000 - 2006 Oleg V. Mukhin.Ru™


Проект G-131-1D